BCS521S - BUILDING CONSTRUCTION - 1ST OPP - NOV 2024


BCS521S - BUILDING CONSTRUCTION - 1ST OPP - NOV 2024



1 Page 1

▲back to top


n Am I BI A u n IVER s I TY
OF SCIEn CEAno TECHn OLOGY
FACULTYOF ENGINEERINGAND THE BUILTENVIRONMENT
DEPARTMENTOF LANDAND SPATIALSCIENCES
QUALIFICATION(S): BACHELOROF PROPERTYSTUDIES
DIPLOMA IN PROPERTYSTUDIES
QUALIFICATION(S)CODE: 08BOPS
06DIPS
NQF LEVEL:5
COURSECODE: BCS512S
COURSENAME: BUILDING CONSTRUCTION
EXAMSSESSION:NOVEMBER 2024
PAPER:
THEORY
DURATION: 3 HOURS
MARKS:
100
FIRSTOPPORTUNITYEXAMINATION QUESTION PAPER
EXAMINER(S) MRS ELINA TEODOL
MODERATOR: MR VERINJAERAl<Ol<ANGOTUE
INSTRUCTIONS
1. Read the entire question paper before answering the Questions.
2. Please write clearly and legibly!
3. The question paper contains a total of 4 questions.
4. You must answer ALLQUESTIONS.
5. Make sure your Student Number is on the EXAMINATION BOOl<(S).
PERMISSIBLEMATERIALS
1. Non-programmable Scientific Calculator
THIS QUESTION PAPERCONSISTSOF 9 PAGES(Including this front page)

2 Page 2

▲back to top


Building Construction
BCS512S
Question 1
For each of the following statements indicate whether it is 'TRUE'OR 'FALSE'.Eachcorrect answer
carries 1 mark.
(20)
a) You are reviewing a set of blueprints for a new commercial building. The client asks if the
blueprints will include the exact colour scheme for painting the walls. A complete set of
blueprints will always include a colour scheme for painting the walls.
b) On a construction site, the client suggests that only the employer and architect are needed for
the project. The traditional set-up of the building team in the construction industry includes
the employer and architect only.
c) During an inspection, you find that a building's foundation has failed due to both underground
mining and an increase in the water table. Any foundation may fail because of subsidence
caused by underground mining and increase in the water table only.
d) The contractor installs a modern toilet system in a new residential building. The type of toilet
system commonly installed in modern residential buildings is a gravity-based flush toilet.
e) A new office building must meet design performance criteria such as fire protection, sound
control, and weather exclusion. The performance requirements of any building include among
others its appearance and sound control, dimensional suitability, weather exclusion and fire
protection.
f) Your team is using pre-manufactured components to speed up construction. System building
(Closed system Building) refers to a method of erecting a building based on the form of
construction in which the component parts of the building fabric are partly factory produced.
g) You are evaluating the structural stability of a high-rise building. The engineer discusses the
importance of the slenderness ratio for its stability. Slenderness ratio is the proportional
relationship between thickness of walls and their foundations width.
First Opportunity Examination Question Paper
Page 2 of 9
November 2024

3 Page 3

▲back to top


Building Construction
BCS512S
h) On a project located on a sloping site, the team suggests reducing the floor levels to fit the
terrain. In building construction working on sloping sites refers to 'reducing floor analyses.
i) After heavy use, cracks appear in several building components, indicating structural stress.
Building component will develop damages whenever the stress in the component exceeds its
strength.
j) You are managing the construction of a row of terraced houses. A wall between two of the
houses is designated as a party wall. Party wall refers to a wall separating two detached
properties that are in separate ownership such as in terraced houses.
k) The project's architectural drawings provide detailed information about the structure's walls
and doors. Architectural drawings contain information about the layout of walls, doors, and
structural elements.
I) A designer proposes using a side-hinged folding door to allow maximum doorway access. A
Side Hinged Folding door provide easy 100% opening of doorway.
m) The contractor suggests focusing on wall finishes and ironmongery as the primary building
finishes for a project. Building finishes can be categorised into groups of wall finishes and
joinery and ironmongery only.
n) A project in a region with very low rainfall is designed with a pitched roof. Pitched roof is the
type of roof suitable in plains where rainfall is insufficient, and temperature is high.
o) The floor systems in a multi-storey building must distribute their loads to columns and walls.
In floor construction, floor systems must transfer their loads horizontally across space to
either beams or columns or to bearing walls.
First Opportunity Examination Question Paper
Page 3 of 9
November 2024

4 Page 4

▲back to top


Building Construction
BCS5125
p) A clerk of works is a person or firm who undertakes to complete a building project in
accordance with the contract documents on behalf of an employer and has full control of all
operations on site.
q) When clearing a site, only bushes and trees need to be removed
r) Load-bearing walls are essential in the construction of traditional buildings, providing
structural support for floors and roofs.
s) In brick masonry, if the bricks are laid by the shorter face of the brick as seen in the elevation
or wall face, it is generally known as a stretcher bond.
t) A roof which slopes in four directions, is called Hip roof.
[20]
Question 2
a) A residential building is being constructed, and the initial cost estimate for roofing materials
(timber, steel trusses, and roofing sheets) was N$150,000. However, due to market
fluctuations, the cost of steel trusses has increased by 20%, while the cost of timber and
roofing sheets remains constant.
Questions:
If the steel trusses originally made up 50% of the total roofing material cost, calculate the new
total cost of the roofing materials.
(4)
b) A property developer is constructing a block of flats and estimates that the cost to build is
N$8,000 per square meter, based on current labour and material costs. The flats are designed
to have a total floor area of 1,200 square meters.
First Opportunity Examination Question Paper
Page 4 of 9
November 2024

5 Page 5

▲back to top


Building Construction
Questions:
BC55125
1. Calculate the total estimated building cost for the block of flats.
(3)
2. If the developer decides to add an additional 10% to the total floor area, how much will
the total building cost increase?
(3)
3. After completing 70% of the project, the developer faces a shortage of funds. Suggest two
ways the project team can reduce building costs for the remaining 30% without
compromising the structural integrity of the building.
(4)
c) A client has requested additional features in the construction of his office building, including
the installation of more expensive imported tiles and custom lighting fixtures. The original
budget for tiles was N$100,000, and for lighting, N$50,000. The imported tiles will cost
N$180,000, and the custom lighting fixtures N$80,000.
Questions:
1. Calculate the total cost overrun for the tiles and lighting fixtures.
(3)
2. If the client has a strict budget and can only increase his total cost by N$50,000, what
adjustments could you propose to meet the client's budget?
(4)
3. As a project manager, discuss the potential long-term implications (financial and time-
related) of agreeing to the client's requested changes.
(3)
b) Outline the six (6) functions of external walls of a building.
(6)
[30]
First Opportunity Examination Question Paper
Page 5 of 9
November 2024

6 Page 6

▲back to top


Building Construction
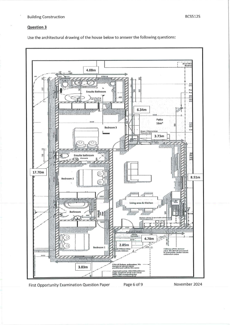
Question 3
Use the architectural drawing of the house below to answer the following questions:
BCS512S
,-----
'
IP'oBoalrdtl,._
.,.
/
/
11
I
,I,
I
i
--------,-
Jot
------ff'~ ~1
la
I ".
..
uo
/
-
;,';-.1-ri -
:mo
I
I,--
Patio
l6m 2
i
fl
!
!
,ll.C,.
C
,,.
,,.
s
I
I
I
Lho ot future cldonsion.
boOCU ln SOW« p'."pO.$
Wo _
_J
I
r.x.-.,uonad wn-h·,-.lhh a,ca
I
/',ppro,c,h\\Otct)'
.(OO;<x»,..l,<XJm1'n
tllnh GABtOH Wad wtth t.U.LO
S~L. (Rf ovn:,boffng by
I
I
I
I
First Opportunity Examination Question Paper
Page 6 of 9
110mm vPVC $0Wor
p.'.po 61:to foU cneoUX!
In cona-oto LVldor fuluro
oxhuulon <H'C.V
November 2024

7 Page 7

▲back to top


Building Construction
BCS5125
a) What type of architectural drawing is shown in the image above?
(1)
b) Based on the drawing, list all the accommodations (rooms) provided by the residential facility.
(3)
c) Calculate the total floor area of the building, excluding the patio. Show your calculations
based on the measurements provided in the drawing?
(6)
d) Calculate the area of Bedrooms 1, 2, and 3 based on the measurements provided.
(3)
e) What is the area of the patio as shown in the drawing?
(2)
f) What are the overall dimensions of the building, from the left to right and top to bottom (2)
g) Identify which rooms in the house have windows based on the drawing.
(4)
h) Basedon standard construction practices, estimate the thickness of the external and internal
walls in the drawing.
(2)
i) Calculate the total perimeter of the building.
(2)
[25]
First Opportunity Examination Question Paper
Page 7 of 9
November 2024

8 Page 8

▲back to top


Building Construction
Question 4
BCS512S
With reference to the site plan of Erf 9 Nubuamis, Windhoek provided below, answer the following
questions:
1:01>'77,r.._._::...-----
-,.......
31.03m
23'2CO---
_ -· --
me.rs
·_
110mmuPVCSew
encasedInc
underpo~llonr
a) What type of architectural drawing is shown in the image?
(1)
b) Compute the running metres of the boundary walls for the subject property. Ensure accuracy
in your calculations.
(2)
c) Determine the total land size of the subject property in square metres. Show your step-by-
step calculations to demonstrate the process. Accuracy in computation is crucial for this
assessment.
(3)
d) Imagine you are a property developer assessing the construction cost for boundary walls.
Given that it cost N$235,000 to construct the brick boundary wall measuring a length (I) of
97.8 running metres and a height (h) of 2 metres for an adjacent property.
Calculate the rate per square metre for constructing the brick boundary wall. Justify your
calculation, considering the total cost and total area (in square metres) covered by the
First Opportunity Examination Question Paper
Page8 of 9
November 2024

9 Page 9

▲back to top


Building Construction
boundary wall.
BCS512S
(3)
e) Utilising the rate per square metre determined above for (c), compute the total cost to
construct the boundary wall for the subject property, assuming the height of the wall (h) is 2
metres. Clearly outline your steps and assumptions in the calculation.
(4)
f) What is the building setback distance from the boundary at the front of the property (facing
the street)?
(1)
g) Based on the drawing, what are the dimensions of the pool?
(1)
h) List three (3) features or structures shown on the site plan.
(3)
i) Based on the site plan, identify the location of the waterline and municipal sewer pipe. (2)
j) What is the required building line distance on the side and rear boundaries as shown on the
site plan?
(2)
k) What is the width of the vehicle entrance gate as shown on the site plan?
(1)
I) If a boundary wall is to be built around the entire property, what will be the total length of the
boundary wall required?
(1)
m) Where is the stormwater drainage system located on the property?
(1)
(25]
First Opportunity Examination Question Paper
Page 9 of 9
November 2024