BCS521S - BUILDING CONSTRUCTION - 2ND OPP - JAN 2025


BCS521S - BUILDING CONSTRUCTION - 2ND OPP - JAN 2025



1 Pages 1-10

▲back to top


1.1 Page 1

▲back to top


nAmlBIA unlVERSITY
OF SCIEnCE Ano TECHnOLOGY
FACULTYOF ENGINEERINGAND THE BUILTENVIRONMENT
DEPARTMENTOF LANDAND SPATIALSCIENCES
QUALIFICATION(S): BACHELOROF PROPERTYSTUDIES
DIPLOMA IN PROPERTYSTUDIES
QUALIFICATION(S)CODE: 08BOPS
06DIPS
NQF LEVEL:5
COURSECODE: BCS521S
COURSENAME: BUILDING CONSTRUCTION
EXAMSSESSION:JANUARY 2025
PAPER:
THEORY
DURATION: 3 HOURS
MARKS:
100
SECONDOPPORTUNITY/SUPPLEMENTARYEXAMINATION QUESTION PAPER
EXAMINER(S) MRS ELINA TEODOL
MODERATOR: MR VERINJAERAKO KANGOTUE
INSTRUCTIONS
1. Read the entire question paper before answering the Questions.
2. Please write clearly and legibly!
3. The question paper contains a total of 4 questions.
4. The question paper contains Appendix A. Detached, complete, insert
and submit it with the Examination Book (s).
5. You must answer ALLQUESTIONS.
6. Make sure your Student Number is on the EXAMINATION BOOK(S).
PERMISSIBLEMATERIALS
1. Non-programmable Scientific Calculator
THIS QUESTION PAPERCONSISTSOF 11 PAGES(Including this front page and the table attached as
Appendix A)

1.2 Page 2

▲back to top


Building Construction
BCS512S
Question 1
For each of the following statements indicate whether it is 'TRUE'OR 'FALSE'.Eachcorrect answer
carries 1 mark.
(26)
a) A drawing or building plan/blueprint is a scaled drawing of a building, room, or home
showing major placements.
b) A colour palette is included in a complete set of blueprints.
c) A sketch should be fairly large to show sufficient details.
d) Building drawings are important because they form an effective means of communication for
building projects.
e) Graphical symbols in a drawing represent different materials in the construction.
f) Architectural drawings provide layout plans and details for the construction of each part of
the building.
g) A working drawing is used to convey the designer's requirement to the contractor.
h) A pictorial drawing is used to briefly show the general design of a structure.
i) A clerk of works is a person or firm who undertakes to complete a building project in
accordance with the contract documents on behalf of an employer and has full control of all
operations on site.
j) The foundation in which isolated slab are constructed to support each column with its own
base is known as Pad footings
k) Mortar should be slightly harder than bricks so that if any movement of wall occurs the
mortar will crack rather than bricks.
Second Opportunity/Supplementary Question Paper Page 2 of 11
January 2025

1.3 Page 3

▲back to top


Building Construction
BCS512S
I) When clearing a site, only bushes and trees need to be removed.
m) In ordinary residential and public building, the Damp Proof Course (DPC) is generally
provided at plinth level.
n) In floor construction, floor systems must transfer their loads horizontally across space to
either beams or columns or to bearing walls.
o) Settlement in buildings occurs when bearing pressure exceeds bearing capacity brought
about by either design or ill-considered alterations.
p) Membrane Structure refers to structures where non-structural membranes act as walls and
roofs supported by tension or compression members, like tents.
q) Multi-span lattice roof is a remedy to an increased height of the apex of a roof due to an
increase in span of a building. This results in the creation of a large usable roof space.
r) A Side Hinged Folding door provide easy 100% opening of doorway
s) Raft footing is a type of foundation generally provided in soils possessing low bearing
capacity.
t) Gypsum plaster may be used for any interior wall or ceiling surface that is subjected to
severe moisture conditions.
u) Purlin is the roof member which is placed horizontally to support common rafter of a sloping
roof.
v) A Queen Closer is a piece of brick cut with its one corner equivalent to half the length and
half the width of brick.
Second Opportunity/Supplementary Question Paper Page 3 of 11
January 2025

1.4 Page 4

▲back to top


Building Construction
w) Retaining wall is a wall constructed to resist the pressure of an earth filling.
BCS512S
x) Building finishes involve only coverings for the internal surfaces of walls, floors, and ceilings
as well as building the staircases, cupboard fitments, and ducting work.
y) X-ray rooms are plastered with Barium plaster.
z) In applying finishing to walls, the render is applied inside while the plaster is done externally.
[26]
Question 2
a) You are managing the construction of a small commercial building with a floor area of 500
square metres. The site soil conditions require deep strip foundations due to poor soil
stability. The estimated cost of the foundation material (concrete, rebar, and formwork) is
N$1,200 per square metre of foundation.
Questions:
i) Calculate the total cost of the foundation if the building requires foundations to cover
20% of the total floor area.
(3)
ii) During the construction, the cost of concrete increases by 10%. How does this impact the
overall foundation cost?
(3)
iii) If the project budget allows only N$100,000 for the foundation work, will you be able to
complete it within this budget after the cost increase? Justify your answer.
(4)
b) A contractor is working on a 10-storey residential building, and the cost estimate for labour
and equipment is N$800,000. However, due to delays in the delivery of construction
materials, the project experiences a two-week halt. The contractor charges a weekly fee of
N$15,000 for equipment standby costs and N$25,000 for labour costs during the delay
period.
Second Opportunity/Supplementary Question Paper Page 4 of 11
January 2025

1.5 Page 5

▲back to top


Building Construction
Questions:
i) Calculate the total additional cost incurred due to the two-week delay.
BCS5125
(3)
ii) If the project manager negotiates a 10% reduction in the standby fees, what would the
new total additional cost be?
(3)
iii) As the project manager, explain how you would handle similar delays in future to
minimise additional costs.
(4)
c) A client has requested additional features in the construction of an office building, including
the installation of more expensive imported tiles and custom lighting fixtures. The original
budget for tiles was N$100,000 and for lighting N$50,000. The imported tiles will cost
N$180,000 and the custom lighting fixtures N$80,000.
Questions:
i) Calculate the total cost overrun for the tiles and lighting fixtures.
(3)
ii) If the client has a strict budget and can only increase their total costs by N$50,000, what
adjustments could you propose to meet the client's budget?
(4)
iii) As a project manager, discuss the potential long-term implications (financial and time-
related) of agreeing to the client's requested changes.
(3)
[30)
Second Opportunity/Supplementary Question Paper Page5 of 11
January 2025

1.6 Page 6

▲back to top


Building Construction
Question 3
a) Use the building sketch below to answer the following questions:
BCS512S
Il~r,:
BA~i:
4.0m'
Gmcd
~ oncnito
-:1
---2
-FIORE
Fru
covn
900mmfr
specialist
Second Opportunity/Supplementary Question Paper Page 6 of 11
January 2025

1.7 Page 7

▲back to top


Building Construction
i) What type of architectural drawing is shown in the image above?
BCS512S
(1)
ii) According to the drawing, what is the height of the wall plate level and lintel level?
(2)
iii) What is the roof pitch angle shown in the drawing?
(2)
iv) What is the depth of the foundation footing from the natural ground level (NGL)?
{1)
v) What is the total floor area of the Living Area & Kitchen as specified in the drawing? (1)
vi) What layers are specified in the floor construction beneath the concrete slab?
{3)
vii) What is the total height from the finished floor level (FFL)to the ceiling in the Living Area &
Kitchen?
{1)
viii) Based on the drawing, estimate the thickness of the external walls.
(1)
ix) Based on the drawing, list the key structural components visible in the section (e.g., wall,
roof, foundation).
{3}
x) What is the specified floor finishing for the living area and kitchen?
{1)
xi) What structural element provides lateral stability to the roof as shown in the drawing? {1)
b) Draw and label the following building foundation types in a sectional plan:
i) A Deep Strip Foundation
ii) A Pad Foundation
{1.5)
{1.5)
(20]
Second Opportunity/Supplementary Question Paper Page7 of 11
January 2025

1.8 Page 8

▲back to top


Building Construction
BCS512S
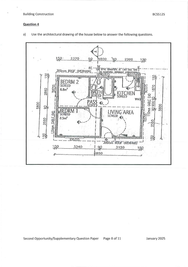
Question 4
a) Use the architectural drawing of the house below to answer the following questions.
0
(0
0
0co C:
(.(")
0:,
0
LI)
1/)
c--t
Second Opportunity/Supplementary Question Paper Page 8 of 11
January 2025

1.9 Page 9

▲back to top


Building Construction
i) Identify the type of building sketch
BCS512S
(1)
ii) Mention any form of the accommodation details
(2)
iii) Identify the thickness of the external and internal walls envelopes
(2)
iv) Calculate the Area of the building (in m2 )
(3)
v) What does the section plane (vertical dashed line with a symbol A) in the plan
represent?
(2)
b) Identify the components of a typical floor construction in buildings as illustrated below. (4)
----~------11)
------11
·~-~---------vii)
'. . ',,., ~vlll)
c) What is the function of the vapour barrier in floor construction?
(1)
Second Opportunity/Supplementary Question Paper Page 9 of 11
January 2025

1.10 Page 10

▲back to top


Building Construction
BCS512S
d) Use the isometric object below and its corresponding multi-view in orthographic (two
dimension) drawings to complete the table provided below.
(9)
11
7
4
18
15
FRONT VIEW
12
8
5
14
'}
21
16
TOP VIEW
SIDE VIEW
17
[24]
Second Opportunity/Supplementary Question Paper Page 10 of 11
January 2025

2 Pages 11-20

▲back to top


2.1 Page 11

▲back to top


Building Construction
BCS512S
Please detach this sheet and submit it with your answer book. Make sure it is properly secured
in your answer booklet.
Student Number ........................................... .
APPENDIXA
QUESTION 4 (d} ANSWER SHEET
A B CD E FG
F
7
T
8
s
19
[9]
Second Opportunity/Supplementary Question Paper Page 11 of 11
January 2025