ACM801S-ADVANCED CONTRACT MANAGEMENT- 1ST OPP- JUNE 2024


ACM801S-ADVANCED CONTRACT MANAGEMENT- 1ST OPP- JUNE 2024



1 Page 1

▲back to top


nAmlBIA UnlVERSITY
OF SCIEnCE Ano TECHnOLOGY
FACULTY OF COMMERCE, HUMAN SCIENCESAND EDUCATION
DEPARTMENT OF MARKETING, LOGISTICS AND SPORT MANAGEMENT
QUALIFICATION: POSTGRADUATE DIPLOMA: PROCUREMENT MANAGEMENT
QUALIFICATION CODE: 08PDPM
COURSE CODE: ACM801S
LEVEL: 8
COURSE NAME: ADVANCE CONTRACTMANAGEMNET
SESSION: JUNE 2024
PAPER: THEORY
DURATION: 3 HOURS
MARKS: 100
FIRST OPPORTUNITY EXAMINATION QUESTION PAPER
EXAMINER(S) Mr. Linus Hamukoto
MODERATOR: Ms. Martha Shingenge
INSTRUCTIONS
1. Answer ALL the questions.
2. Write clearly and neatly.
3. Number your answers clearly.
4. This question paper consists of three sections: Section A (Question 1 which consists of
Multiple choice and is allocated 20 Marks}, Section B which consists of (Questions 2, 3, 4
and 5 allocated 60 Marks} and Section C which consists of (Questions 6 allocated 20
Marks}
THIS QUESTION CONSISTS OF 10 PAGES (Including this front page)

2 Page 2

▲back to top


SECTION A: MULTIPLE CHOICE QUESTIONS (20 MARKS)
QUESTION 1
There are twenty (20) Multiple-choice questions with several possible choices each. Choose the best
possible answer, for example, 1.1 A. Each question is equivalent to 1 mark. There is only ONEcorrect
answer for each question. Negative marking will not be applied, but answers to questions will not be
marked where more than one answer has been given. Only write the chosen letter next to the
corresponding question number.
1.1 During negotiations, a category manager is negotiating with a significant supplier. Progress
seems slow, despite the supplier offering a significant pricing reduction. In response, the
category manager agrees to modify the specification to suit the supplier's processes. This
move takes both parties further than they initially planned. The category manager's response
could be described as...
A. an authoritative position
8. a reciprocated concession
C. a take it or leave it reply
D. Both A & C
E. None of the above
(1 Mark)
1.2 A Procurement Manager at the Li.ideritz Waterfront Development Company is engaged in a
negotiation process. Which type of negotiation style can be used by the Procurement
Manager by using their power as leverage or being satisfied with a win-lose outcome?
A. Integrative
8. Principled
C. Influential
D. Both A & C
E. None of the above
(1 Mark)
1.3 Which of the following accurately describes an offer in contract law?
A. A statement of intention to negotiate.
B. A proposal indicating a willingness to enter into a contract under specific terms.
C. An invitation to treat.
D. A counteroffer made in response to a previous offer.
E. None of the above
(1 Mark)
2

3 Page 3

▲back to top


1.4 The Chief Procurement Officer (CPO) of a major organization is meeting with a key internal
stakeholder whom the CPO has not previously met. The purpose of the meeting is to build
rapport and understand the stakeholder's needs, ensuring these are addressed in the future
procurement strategy. Which type of question would the CPObe likely to use the most in this
situation?
A. Leading
B. Direct
C. Closed
D. Both A & B
E. None of the above
(1 Mark)
1.5 Which of the following constitutes a breach of contract?
A. A party's failure to perform its obligations under the contract due to unforeseen
circumstances beyond its control.
B. A party's refusal to perform its obligations under the contract without a valid excuse.
C. A party's delay in performing its obligations under the contract due to circumstances
outside of its control.
D. A party's decision to renegotiate the terms of the contract after it has been executed.
E. All of the above
(1 Mark)
1.6 Which of the following is NOT a typical remedy available to the non-breaching party in the
event of a breach of contract?
A. Specific performance
B. Liquidated damages
C. Injunction
D. Restitution
E. All of the above
(1 Mark)
1.7 Which of the following does not describes termination by mutual agreement?
A. The contract is terminated due to expiration of the contract term.
B. One party unilaterally decides to end the contract without the consent of the other party.
C. Both parties agree to end the contract, typically by entering into a new agreement or
releasing each other from their obligations under the existing contract.
D. The contract is terminated automatically upon the occurrence of a specified event or
condition.
E. None of the above
(1 Mark)
3

4 Page 4

▲back to top


1.8 Which of the following best defines Contract Management in procurement?
A. A process solely focused on the negotiation of pricing and terms between parties involved
in a procurement transaction.
B. The process of overseeing the procurement team's activities, ensuring compliance with
procurement policies and regulations.
C. A systematic approach to managing agreements, from inception through execution by the
selected party, to contract termination.
D. The strategic planning phase of procurement, involving market analysis and supplier
selection.
E. None of the above
(1 Mark)
1.9 Which stage of Contract Management in procurement primarily involves strategic planning,
resource allocation, and structural formulation prior to the contract being awarded?
A. Post-award phase
B. Award phase
C. Management and/or development phase
D. End of the contract lifecycle phase
E. None of the above
{1 Mark)
1.10 Nangondwe Construction PTYLTD,a Namibian Based retail chain, is exploring partnerships to
expand its product range. They are considering various types of potential collaborations that
are crucial for Nangondwe Construction PTYLTD'sgrowth strategy.
1. Joint venture
2. Closer tactical
3. Partnership
4. Arm's length
A. 1 and 2 only
B. 1 and 3 only
C. 3 and 4 only
D. 2 and 4 only
E. 2 only
{1 Mark)
1.11 In the pre-award stages of procurement, what primarily involves determining the structure
and format of the contract, including terms and conditions, pricing, and performance metrics?
A. Contract Evaluation
B. Supplier Identification
C. Contract Implementation
D. RiskAssessment and Mitigation
E. None of the above
{1 Mark}
4

5 Page 5

▲back to top


1.12 A newly appointed procurement manager at the Namibia Trade Board, Mrs. Haufiku has a
meeting scheduled with an important stakeholders of equivalent seniority level, within the
Public Entity. Mrs. Haufiku as a procurement manager plans to meet them for coffee in the
staff canteen to get to know them better. Is this the right course of action?
A. No, first meetings should always be more formal and minuted
B. Yes, this will build rapport and make influencing more effective
C. Yes, buying someone a coffee is a form of bargaining which can be traded in the negotiation
D. No, meeting in the staff canteen for a coffee is unprofessional and unethical
E. None of the above
(1 Mark)
1.13 In a competitive bidding process, when should the buyer's terms and conditions ideally be
communicated to the supplier, posing a challenge for optimal timing and strategic advantage?
A. At the contract commencement meeting
B. When the negotiation is nearing completion
C. With the contract award notification
D. As part of the invitation to bid
E. A & D only
(1 Mark)
1.14 When entering into negotiation with a supplier as a buying team, which of the following
should the team consider before the negotiation?
1. What roles will the buying team need to fulfil?
2. Who will take minutes during the meeting?
3. When will we rehearse before the meeting?
4. How the supplier will communicate the negotiation outcomes?
5. A review the negotiation outcomes
6. Who will be blamed if negotiations fail?
A. 1, 2 and 4
B. 1, 3 and 5
C. 1, 2, and 3
D. 3, 4 and 5
E. 4, 5 and 6
(1 Mark)
1.15 In maintaining a diverse property estate, which procurement approach involves procuring
goods or services on a case-by-case basis, typically for unique or one-time requirements?
A. Framework agreements
8. Once-off purchases
C. Spot transactions
0. Purchase orders
E. None of the above
(1 Mark)
5

6 Page 6

▲back to top


1.16 Cecilia is a procurement graduate for Windhoek Cleaning CC, a Namibian manufacturing
company. She is planning a negotiation with a supplier of consumable cleaning products,
which are categorized at Windhoek Cleaning CC as non-critical. Cecilia's target for the
negotiation is to reduce the cost of the contract by at least 2%. She believes that the supplier
thinks of lngen as a nuisance customer, as Windhoek Cleaning CC'sspend equates to around
1% of the supplier's overall turnover, and only buys a small number of the supplier's available
products. Which of the following are the supplier's potential likely objectives during the
negotiation?
1. Agree the shortest possible payment terms for its invoices
2. Assign a permanent account manager to Ingen's account
3. Gain agreement to develop bespoke products for lngen
4. Design a sophisticated new ordering system for lngen to use
5. Increase the value of the products bought through the contract
A. 1, 2 and 3 only
B. 1, 3 and 4 only
C. 1, and 5 only
D. 1, 3 and 5 only
E.4 and 5 only
(1 Mark)
1.17 Which of the following benefits is achieved through the contract management process by
ensuring adherence to regulatory requirements and organizational policies?
A. Enhanced contract compliance
B. Performance Monitoring
C. Risk management
D. A only
E. All of the above
(1 Mark)
1.18 Demonstrating which of the following characteristics to the other party is the most important
when attempting to build a good and sincere working relationship?
1. Trust
2. Logic
3. Integrity
4. Leadership
A. 1 and 2 only
B. 2 and 4 only
C. 1 and 3 only
D. 3 and 4 only
E. 1, 2 and 4 only
6

7 Page 7

▲back to top


1.19 A procurement professional (PP) is preparing for a negotiation with one of the organisation's
most important suppliers. Due to staff turnover, the supplier has experienced some minor
performance issues but has promised to resolve these soon. The contract is approaching the
end of year three and has a further seven years left to run, with the option of an extension of
a further two years. The contract is very high value and is viewed by the procurement
organisation as high risk with equally high complexity. To achieve a mutually acceptable and
positive outcome, using a principled approach to the negotiations, which of the following will
be important for the PPto concentrate on during the negotiation?
1. Separate the people from the problem
2. "Win" the negotiation at all costs
3. Avoid any concessions to the supplier
4. Focus on interests and not on positions
A. 1 and 2 only
B. 2 and 3 only
C. 3 and 4 only
D. 1 and 4 only
E. 2 and 4 only
(1 Mark)
1.20 Positive supplier motivation will typically be enhanced by which of the following on contracts?
1. Being paid on time
2. Retaining the customer's business
3. Reduced service standards
4. Encouraging open market competition
5. Earning an acceptable profit margin
6. The buyer varying the specification
A. 1, 3 and 6 only
B. 2, 3 and 5 only
C. 3, 4 and 6 only
D. 1, 2 and 3 only
E. 1, 2 and 5 only
(1 Mark)
Subtotal: 20 Marks
SECTION A: 20 TOTAL MARKS
7

8 Page 8

▲back to top


SECTION B: STRUCTURED QUESTIONS (60 MARKS)
QUESTION 2
Using the Value Risk Matrix (VRM), apply your understanding, analyze and provide a classification of
the contract into one of the following categories: Strategic, Leveraged, Routine, or Focused? Your
justification is critical in answering this question based on the contract's value and associated risks.
(20 Marks)
2.1 The Walvis Bay Municipality, a Namibian based Public Entity, is considering outsourcing its IT
services for a contract valued at N$50 million. (2 Marks)
2.2 Ongwediva Medipark Hospital, a leading hospital chain, is entering into a procurement contract
for the servicing of respiratory support medical equipment valued at N$20 million. (2 Marks)
2.3 ABC Electronics, a leading manufacturer of consumer electronics, requires specialized packaging
materials for its new line of high-end smartphones, with a contract value of N$1 million. (2 Marks)
2.4 GHI Pharmaceuticals is engaging in a contract for the development of a new drug, with a contract
value of N$150 million. (2 Marks)
2.5 JKLCorporation, a manufacturing company, is outsourcing its logistics operations for a contract
valued at N$30 million. (2 Marks)
2.6 MNO Bank is procuring a new core banking system for a contract value of N$80 million. (2 Marks)
2.7 A government agency is entering into a contract with Waltons Namibia for the provision of office
stationery, with a contract value of N$500 000.00. (2 Marks)
2.8 The Roads Authority concluded a contract after an Open National bidding process for the
construction of a highway. STU Construction Company was awarded the contract with a value of
N$900 million. (2 Marks)
2.9 See-Through IT Services, a large multinational company, is negotiating a software licensing
agreement with a leading software vendor for its enterprise resource planning (ERP)system, with
a contract value of N$500 million. (2 Marks)
2.10 YZA Retail Chain is entering into a contract for the supply of transportation services from a new
service provider, with a contract value of N$100 000.00 (2 Marks)
Subtotal: 20 Marks
QUESTION 3
The Namibia Standards Institution as a public sector organization is planning to construct a new head
office building to accommodate its growing workforce and enhance operational efficiency. The
construction of the office building is estimated at an amount of N$ 100 million, and estimated to take
3 years to complete. The procurement process involves several stages of contract management and
stakeholders.
Using the provided example, analyse each stage of the contract management process and identify the
key activities, stakeholders and considerations involved in each stage? (20 Marks)
QUESTION 4
Apart from the contract agreement itself, what other documents should be included in the content of
a procurement contract arising from a public procurement process? (6 Marks)
8

9 Page 9

▲back to top


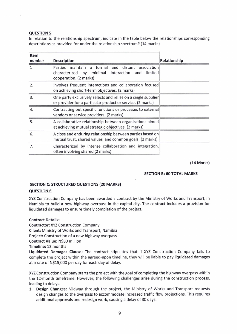
QUESTION 5
In relation to the relationship spectrum, indicate in the table below the relationships corresponding
descriptions as provided for under the relationship spectrum? {14 marks)
Item
number
1
2.
3.
4.
5.
6.
7.
Description
!Relationship
Parties maintain a formal and distant association
characterized by minimal interaction and limited
cooperation. (2 marks)
Involves frequent interactions and collaboration focused
on achieving short-term objectives. (2 marks)
One party exclusively selects and relies on a single supplier
or provider for a particular product or service. (2 marks)
Contracting out specific functions or processes to external
vendors or service providers. (2 marks)
A collaborative relationship between organizations aimed
at achieving mutual strategic objectives. (2 marks)
A close and enduring relationship between parties based on
mutual trust, shared values, and common goals. (2 marks)
Characterized by intense collaboration and integration,
often involving shared (2 marks)
(14 Marks)
SECTION B: 60 TOTAL MARKS
SECTION C: STRUCTURED QUESTIONS (20 MARKS)
QUESTION 6
XYZConstruction Company has been awarded a contract by the Ministry of Works and Transport, in
Namibia to build a new highway overpass in the capital city. The contract includes a provision for
liquidated damages to ensure timely completion of the project.
Contract Details:
Contractor: XYZConstruction Company
Client: Ministry of Works and Transport, Namibia
Project: Construction of a new highway overpass
Contract Value: N$80 million
Timeline: 12 months
Liquidated Damages Clause: The contract stipulates that if XYZ Construction Company fails to
complete the project within the agreed-upon timeline, they will be liable to pay liquidated damages
at a rate of N$15,000 per day for each day of delay.
XYZConstruction Company starts the project with the goal of completing the highway overpass within
the 12-month timeframe. However, the following challenges arise during the construction process,
leading to delays.
1. Design Changes: Midway through the project, the Ministry of Works and Transport requests
design changes to the overpass to accommodate increased traffic flow projections. This requires
additional approvals and redesign work, causing a delay of 30 days.
9

10 Page 10

▲back to top


2. Substandard materials: A situation substandard materials supplied by the contractor, essential
for the overpass's structural integrity, occurs due to supplier non-performance. This halts
construction for 20 days until the supplier delivers the quality standard of material.
3. Labor Strikes: Workers go on strike to demand better working conditions, leading to a work
stoppage for 15 days.
Prepare an analysis detailing the applicable liquidated damages and indicate the total liquidated
damages applicable to XYZconstruction company? (20 Marks)
SECTION C: 20 TOTAL MARKS
TOTAL MARKS:100
ALLTHE BEST